Arbeitsgruppe:Space v2.0: Unterschied zwischen den Versionen
K (+ Planungspad) |
(Grundrisse, Raumaufteilung aus dem ersten Planungstreffen, Besichtigungen sind vorbei, Download-Link, Kategorie:Space v2.0) |
||
| Zeile 4: | Zeile 4: | ||
|beschreibung=Arbeitsgruppe zur Planung und Renovierung des neuen Space im Schimmel-Hof, 1. OG | |beschreibung=Arbeitsgruppe zur Planung und Renovierung des neuen Space im Schimmel-Hof, 1. OG | ||
|interessenten= | |interessenten= | ||
| + | |download=[http://svn.tinyhost.de/stratum0/stuff/Space2.0/ SVN] | ||
}} | }} | ||
| Zeile 23: | Zeile 24: | ||
Vor kurzem (Februar 2013) erhielten wir von der Immobilienverwaltung, die den Schimmelhof und auch unsere aktuelle Raemlichkeit verwaltet, ein Angebot zu einer neuen Mietsache direkt im 1. OG im selben Gebaeude wo unser aktueller Space sich befindet. | Vor kurzem (Februar 2013) erhielten wir von der Immobilienverwaltung, die den Schimmelhof und auch unsere aktuelle Raemlichkeit verwaltet, ein Angebot zu einer neuen Mietsache direkt im 1. OG im selben Gebaeude wo unser aktueller Space sich befindet. | ||
| − | Eckdaten | + | ==== Eckdaten ==== |
* Die Kaltmiete bleibt in etwa gleich (!!), die Nebenkosten sind natuerlich entsprechend hoeher | * Die Kaltmiete bleibt in etwa gleich (!!), die Nebenkosten sind natuerlich entsprechend hoeher | ||
* Es handelt sich um zwei grosse Raeume a etwa 70m^2, also etwas mehr als doppelt so viel Platz wie aktuell | * Es handelt sich um zwei grosse Raeume a etwa 70m^2, also etwas mehr als doppelt so viel Platz wie aktuell | ||
| Zeile 41: | Zeile 42: | ||
* Alarmanlage vorsehen (Wir werden sicher ein paar Werte anhäufen in den nächsten Jahren) | * Alarmanlage vorsehen (Wir werden sicher ein paar Werte anhäufen in den nächsten Jahren) | ||
| − | + | ==== Abmessungen ==== | |
| − | + | <gallery heights=300 widths=400> | |
| − | + | Datei:Space2.0 Ohne Einbauten.pdf|Grundriss mit Bemaßung (TODO: Link zur DXF) | |
| − | + | </gallery> | |
| − | |||
| − | |||
| − | |||
| − | |||
| − | |||
== Vorzeigematerial == | == Vorzeigematerial == | ||
| Zeile 60: | Zeile 56: | ||
{{#widget:YouTube|id=zM2hAshptSk}} | {{#widget:YouTube|id=zM2hAshptSk}} | ||
| − | == | + | == Aktuelle Planung == |
| − | + | Zur Zeit läuft die Planungsphase in mehreren Treffen. Die Ergebnisse sollen hier in Kurzform zusammengefasst werden. | |
| − | + | ||
| + | === Raumaufteilung === | ||
| + | Folgende Varianten wurden bisher entwickelt: | ||
| + | |||
| + | <gallery heights=300 widths=400> | ||
| + | Datei:Space2.0 Mit Trockenbauwänden.pdf|Beispielhafte Raumaufteilung | ||
| + | Datei:Grundriss ObererRaum DunklerVortragsraum.pdf|Aufteilung nördlicher Raum: Vortragsraum ohne Tageslicht. Werkstatt und Frickelraum mit Tageslicht. ([http://svn.tinyhost.de/stratum0/stuff/Space2.0/Grundriss_ObererRaum_DunklerVortragsraum.DXF DXF]) | ||
| + | Datei:Grundriss ObererRaum GrosserSeminarraum.pdf|Aufteilung nördlicher Raum: Großer Seminarraum mit Tageslicht. Kleinerer Frickelraum mit Tageslicht durch kleine Fenster. Kleiner Werkstatt-Dungeon. ([http://svn.tinyhost.de/stratum0/stuff/Space2.0/Grundriss_ObererRaum_GrosserSeminarraum.DXF DXF]) | ||
| + | Datei:Grundriss ObererRaum SchraegeSache.pdf|Aufteilung nördlicher Raum: Halb großer Seminarraum. Halb großer Frickelraum. Beide mit Tageslicht. Werkstattdungeon. ([http://svn.tinyhost.de/stratum0/stuff/Space2.0/Grundriss_ObererRaum_SchraegeSache.DXF DXF]) | ||
| + | Datei:Grundriss UntererRaum Variante-Chill.pdf|Aufteilung südlicher Raum: Große Küche mit Sitzecke. Variabler Raumtrenner für Eingang zur Küche für z.B. Veranstaltungen mit Verkauf. Schiebetür zum Abtrennen der Küche beim Kochen. Kleines Bad. Chill-Bereich. ([http://svn.tinyhost.de/stratum0/stuff/Space2.0/Grundriss_UntererRaum_Variante-Chill.DXF DXF]) | ||
| + | </gallery> | ||
| − | [[Kategorie: | + | [[Kategorie:Space v2.0]] |
Version vom 11. März 2013, 04:10 Uhr
| Arbeitsgruppe:Space v2.0 | |
|---|---|
| Beschreibung: | Arbeitsgruppe zur Planung und Renovierung des neuen Space im Schimmel-Hof, 1. OG |
| Kontakt: | reneger, Vorstand |
| Status: | aktiv (Was heißt das?) |
| Download: | SVN |
Inhaltsverzeichnis
Status
Besichtigungen sind vorbei, es sollte jeder Gelegenheit gehabt haben, sich vor Ort ein Bild zu machen. Auf der Mitgliederversammlung 2013-03-16 wird entschieden, ob dieser neue Space anstelle des Alten gemietet wird. Bis zu diesem Tag wird es noch mindestens ein Treffen der Arbeitsgruppe geben, an dem Planungsdetails ausgearbeitet werden, insbesondere Raumaufteilung, Wandsanierung, Boden, Einrichtung eines Bades, zu legende Elektrik.
Wer interessiert ist an der Planung teilzuhaben, bitte bei Reneger oder Valodim melden. Terminankuendigungen gehen natuerlich auch ueber Newsletter. Auf der MV soll nichts mehr im Detail besprochen, sondern lediglich ueber Vorschlaege und Optionen abgestimmt werden!!
Master-Planungspad: https://pad.stratum0.org/p/2013-03-00_Space2.0_Infopad
Der Space
tl;dr
Neuer Space direkt neben altem, 140m^2 statt 60m^2 bei nur geringfuegig hoeheren laufenden Kosten, dafuer MASSIV Investition notwendig.
got time; gonna read
Vor kurzem (Februar 2013) erhielten wir von der Immobilienverwaltung, die den Schimmelhof und auch unsere aktuelle Raemlichkeit verwaltet, ein Angebot zu einer neuen Mietsache direkt im 1. OG im selben Gebaeude wo unser aktueller Space sich befindet.
Eckdaten
- Die Kaltmiete bleibt in etwa gleich (!!), die Nebenkosten sind natuerlich entsprechend hoeher
- Es handelt sich um zwei grosse Raeume a etwa 70m^2, also etwas mehr als doppelt so viel Platz wie aktuell
- Es muessen Waende gezogen werden!
- Aussenwand ist teilweise feucht, das scheint aber nicht nachzuziehen. Raum laesst sich aufheizen.
- Waende muessen trotzdem teilweise neu gemacht werden
- Nachbarn sind das Studio, in dem die Opernleute proben. Soundkulisse also im Groben wie jetzt.
- Sanitaere Einrichtungen sind nicht vorhanden, Abwasserrohr zu geringer Durchmesser fuer direkten Anschluss an Toilette
- Bad mit Hebeanlage muesste man selbst einbauen
- Die Elektrik ist toll (stromaffine Entitaet bitte Details ergaenzen)
- Diverse Sicherungen a 16 Ampere, Steckdosen werden wir noch legen müssen.
- Die Lüftung könnte ein Problem darstellen, muß geplant werden.
- Bodenbelag erscheint notwendig
- Decke ist teilweise abgehängt
- Wasser und Abwasser müssen für den Küchenbereich verlängert werden (Geschirrspüler vorsehen!)
- Fenster am Boden muß ersetzt werden, lässt sich derzeit nicht öffnen
- Alarmanlage vorsehen (Wir werden sicher ein paar Werte anhäufen in den nächsten Jahren)
Abmessungen
Vorzeigematerial
Bilder
Video
Aktuelle Planung
Zur Zeit läuft die Planungsphase in mehreren Treffen. Die Ergebnisse sollen hier in Kurzform zusammengefasst werden.
Raumaufteilung
Folgende Varianten wurden bisher entwickelt:
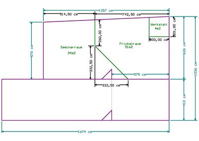
Aufteilung nördlicher Raum: Vortragsraum ohne Tageslicht. Werkstatt und Frickelraum mit Tageslicht. (DXF)
Aufteilung nördlicher Raum: Großer Seminarraum mit Tageslicht. Kleinerer Frickelraum mit Tageslicht durch kleine Fenster. Kleiner Werkstatt-Dungeon. (DXF)
Aufteilung nördlicher Raum: Halb großer Seminarraum. Halb großer Frickelraum. Beide mit Tageslicht. Werkstattdungeon. (DXF)
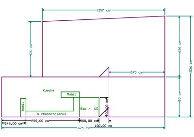
Aufteilung südlicher Raum: Große Küche mit Sitzecke. Variabler Raumtrenner für Eingang zur Küche für z.B. Veranstaltungen mit Verkauf. Schiebetür zum Abtrennen der Küche beim Kochen. Kleines Bad. Chill-Bereich. (DXF)

